Centre d’hébergement pour requérants d’asile

1450 Sainte-Croix (VD)
1994-1998
État de Vaud, Service des bâtiments

Collaborateur: Pierre Gerster

L’implantation d’un centre d’hébergement pour requérants d’asile de 140 places à Sainte-Croix a conduit l’État de Vaud à acquérir, en 1995, deux bâtiments désaffectés situés à la rue de l’Industrie, l’ancienne infirmerie construite en 1885 dans un parc, agrandi en 1920 et transformé en 1950 comme réfectoire pour les usines Paillard et un bâtiment industriel.
Le projet s’appuie sur la proposition de considérer cet hébergement comme un programme de logement collectif, permettant par la mise en place d’appartements une meilleure intégration des différentes ethnies qui occupent ces lieux.
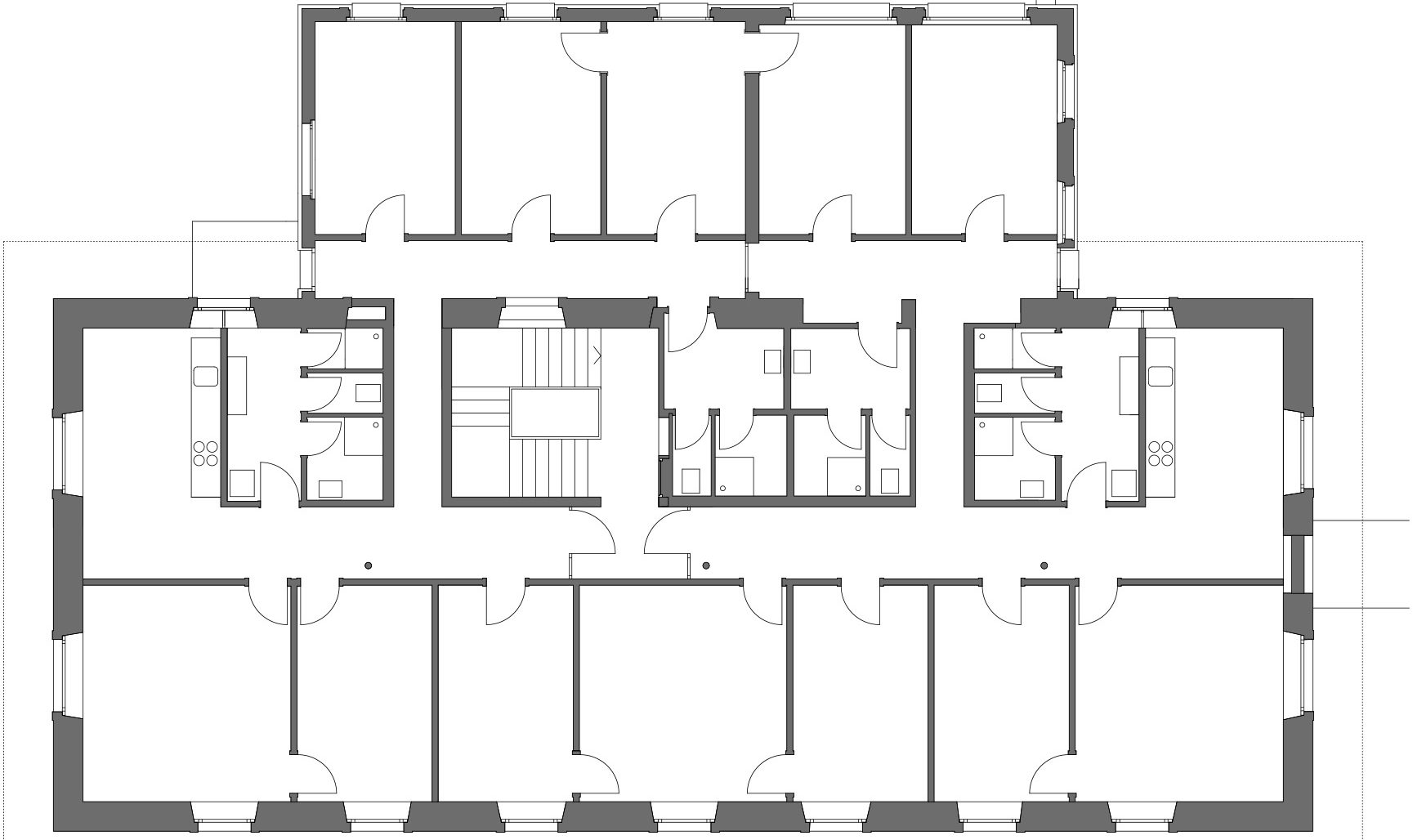
L’appartement comprend trois à cinq chambres de deux à trois lits dont certaines communicantes pour l’accueil des familles, une cuisine habitable et un noyau sanitaire. La chambre est le lieu de l’intimité, la maison. Le couloir et la cuisine sont les espaces collectifs partagés, la rue et la place qui sont traitées de manière neutre, sol gris et murs pâles, alors que la porte de la chambre a son numéro et sa couleur propre.
Le projet de transformation des bâtiments consiste à insérer ces logements dans les structures existantes et leurs dimensions en greffant les espaces de circulation à une distribution plus générale et en disposant les chambres et les espaces collectifs selon l’orientation, la lumière et les vues des fenêtres existantes. Cette insertion laisse perceptible les qualités d’origine des bâtiments.
Dans l’ancienne infirmerie, la typologie hospitalière s’adapte aisément au nouvel usage. La construction d’une nouvelle cage d’escalier, à la jonction entre le bâtiment de 1880 et l’extension de 1920 permet la distribution de deux appartements séparés par une cloison vitrée qui conserve la vision du couloir dans son entier. Les cuisines sont placées en face des deux cages d’escalier de manière à éclairer naturellement le milieu du couloir. Elles sont placées dans la couche qui regarde l’autre bâtiment.
Les chambres sont les maisons réduites à un espace avec une porte, une fenêtre vers l’extérieur, un radiateur, un rideau. Ces chambres sont communicantes deux par deux, pour accueillir les familles de requérants d’asile qui vont séjourner ici entre 12 et 18 mois. Dans l’ancien bâtiment industriel qui était desservi par une passerelle, nous avons construit un nouvel escalier qui distribue deux appartements de 6 pièces. Dans tous les appartements, au droit de leur séparation, des chambres communicantes permettent une occupation flexible par des ethnies différentes.
Dans ce programme d’habitation réduit, il n’y a pas de séjour. C’est la cuisine qui est la place collective du logement. Dans l’ancienne infirmerie, elle est placée en relation avec la cage d’escalier pour bénéficier de l’animation de celle-ci. Dans l’ancienne fabrique, elle est placée en fin de parcours, en continuité avec la couloir.
Malgré l’austérité du programme, cette conception de la distribution comme reliée à celle de la ville, nous a permis de conserver la grande dimension des espaces existants, la lumière de ceux-ci et de donner ces qualités à la vie collective de ce nouvel usage.

​Publication:
– La Romandie existe, Verlag Hochparterre, 1998
– Werk, Bauen & Wohnen  5/2000

Bâtiment 1 - étage existant
Bâtiment 1 - étage transformé
Bâtiment 1 - rez existant
Bâtiment 1 - rez transformé
Bâtiment 1 - coupe transversale
Bâtiment 1 - façade nord
Bâtiment 2 - étage existant
Bâtiment 2 -étage transformé
Bâtiment 2 - rez existant
Bâtiment 2 - rez transformé
Bâtiment 2 - coupe transversale
Bâtiment 2 - façade ouest