1450 Sainte-Croix (VD)
2005
Maître de l’ouvrage: privé

Transformation de garages avec habitation en logement, rue des Arts.

Collaborateur: Jérôme Haefeli

Construit dans les années 1930 comme dépendance de l’immeuble situé de l’autre coté de la Rue des Arts, Il abritait deux garages pour automobiles et, à l’étage, un petit logement de deux pièces, accessible par un escalier extérieur.
Le souhait des maîtres de l’ouvrage était de transformer, en minimisant les coûts,  la maison en habitation de vacances, qui pourrait être plus tard le logement d’une petite famille. La cuisine, pièce habitable, devait occuper une place centrale dans la vie de la maison.
Le projet de transformation, pour limiter l’intervention au nécessaire, commence par la recherche des qualités de ce qui peut être conservé. Ainsi les chambres existantes peuvent n’être que repeintes et leur parquet poncé, alors que la cuisine le WC-douche et la chaufferie, avec leurs équipements techniques obsolètes qui doivent être entièrement refaits peuvent être déplacés.
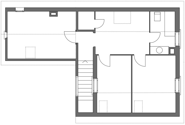
Le projet porte sur la distribution ; dans ses deux significations, comme disposition des pièces et comme parcours qui les relie. La pièce de la cuisine habitable, l’espace le plus grand de la maison avec son usage collectif, est placée au rez de chaussée, sur la rue, à la place des garages, et les portes ce ceux-ci remplacées par de grandes fenêtres. En exagérant la surélévation du sol du à son isolation thermique, il est possible de dominer légèrement la rue, assez pour atténuer la gène du regard des passants. L’entrée à l’ancienne buanderie, depuis la cour, est conservée pour devenir la nouvelle entrée de la maison avec un vestiaire et l’accès à une pièce de rangement. A l’étage, l’emplacement du WC-douche en façade permet la mise en place d’un hall éclairé par une fenêtre de toiture. Ce hall, qui peut servir de bureau ou de pièce de jeu, donne accès indépendamment aux trois chambres. L’emballage de l’escalier extérieur, avec le retournement de ses premières marches, et le percement d’un deuxième passage dans le mur du fond des garages permettent le déroulement d’un parcours en spirale qui conduit du plus public, la rue, la cour arrière et l’entrée, la cuisine habitable, le hall de l’étage, au plus privé, la chambre.  Cet emballage, en planche de sapins à clin, confirme le caractère d’arrière-cour tout en permettant une construction légère qui s’appuie sur l’escalier et l’avant-toit existants.                                    

étage initial
étage transformé
rez existant
rez transformé
façade ouest initial
façade ouest transformé
façade sud initial
façade sud transformé
coupe transversale initial
coupe transversale transformé